法拍新北市林口區大樓

透明房訊,台北104法拍,台北法拍屋
法拍屋,法拍屋代標,法拍屋出售
最後更新:2小時內
房屋資料
案名雙車位【聯虹天耀】公園旁,富貴路67號11樓案號115職一50金
地址新北市林口區富貴路67號11樓社區/大樓新北-聯虹天耀
銷售狀態待標中售價
售4327萬
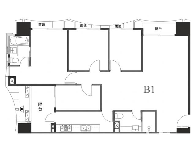
房屋類型法拍大樓總登記坪數68.19 坪
格局3房, 2廳, 2衛屋齡9年
每坪單價63.46萬/坪公設比
車位坡道平面x2座向朝西北
無障礙環境法拍屋 本物件是法拍屋
拍次 : 1
開標日期 : 115/5/6
建物所在樓層11/19管理費
管委會中庭
電梯是否為凶宅
300公尺內嫌惡設施面前道路
面寬縱深
邊間房屋銷售來源不動產經紀人/專業仲介
房屋特色
貸款才是決勝點,提供預審,保證核貸
擔任『台灣不動產拍賣協會』監事

◆己經查封,無法看室內◆
◆門牌:富貴路67號11樓
◆主建物:30.94坪
◆附屬:4.47坪
◆公設:18.77坪
◆車位:14.01坪
【2車║坡平式║編號地下四層65、66號】
◆土地:4.58坪
◆土地現值:【住宅區(再)■115年公告現值:257591元/㎡】
◆房屋用途:RC造/集合住宅
◆房屋樓層:所在11樓/總樓層19樓
◆房屋朝向:朝西北

※注意:依法務部調查局臺北市調查處函辦理禁止處分登記
(可以貸款,房屋權狀移轉會多一點點的時間)

【案件特色】
◎車位:【2車║坡平式║編號地下四層65、66號】
◎房屋特點:林口中心商業區核心地段、格局方正三房雙衛、配置稀有雙平面大車位、高樓層採光通風佳
◎房屋格局:3房/2廳/2衛(此格局為原建設規劃或內政部實價登錄,僅供參考,以現況為準!)
◎交通動線:富貴路、文化二路二段、文化三路二段、中山路,車程約10分鐘可達國道1號林口交流道,交通網絡發達
◎捷運站:機場捷運A9林口站(車程約8-10分鐘)
◎公車站牌:富貴森林公園站、文化三路中山路口站
◎生活機能:家樂福商圈、三井Outlet、昕境廣場、林口運動中心,生活機能完善
◎鄰近學校:東湖國小、頭湖國小(雙語)、佳林國中、林口國中
◎公園綠地:富貴森林公園、林口第二運動公園
◎醫療診所:林口長庚紀念醫院

【社區簡介】
◎建設公司:聯虹建設
◎建築設計:周文斌建築師事務所
◎營造公司:宏林營造
◎樓層規劃:地上19層,地下5層
◎總戶數:176戶
◎車位類別:坡道平面
◎車位數量:218
◎充電設備:充電車位(公)
◎公共設施:電梯大樓、24小時飯店式管理、中庭花園、健身房、視聽中心、宴會廳、遊戲室及媽媽教室等

【補充新聞】
伊林前名模蕭O葶因涉嫌與哥嫂蕭O、陳O君侵占「中華民國身障關懷協會」逾億元善款案,檢方查出,內政部2011年核准設立「社團法人中華民國身障關懷協會」,蕭靖擔任首屆理事長,藉由照顧身障兒童,對外推動公益並在街頭募款,但實際上,款項並未全數投入公益,反而有大筆金流流入私人帳戶,除了被用來購買房產及進口豪車外,甚至養寵物狐狸,過著雲端般奢華生活,涉嫌詐捐逾1.1億元、詐貸5,216萬元,龐大資金遭揮霍於購屋、名車、股票投資及高檔餐飲等豪奢開銷。(資料來源:三立新聞網)


【法院筆錄】●點交情形→點交●
1‧標的經查由債務人之父母及家人共同居住使用,建物部分拍定後【依現況點交】。
2‧本件配附雙停車位:地下四層編號65、66號,現由債務人母親使用,車位部分拍定後不點交。
3‧另本件12135建號上有法務部調查局臺北市調查處114年4月28日北防字第11443571800號禁止處分登記,因本件為抵押權人聲請拍賣抵押物,前開禁止處分登記在本件抵押權設定之後,法院已去函本件拍賣情形予法務部調查局臺北市調查處,並請該處於本件拍定時配合塗銷前開禁止處分,該處並無意見。惟如拍定時,該處不配合辦理,仍應請拍定人自行向法務部調查局臺北市調查處請求主張,以上情形,再請投標人自行評估決定是否參與投標應買,且不得於拍定後再執前揭事由聲明異議或聲請撤拍。
4‧本件標的物所有權人或使用人如積欠工程受益費及水電費、瓦斯費或管理費等費用,應由拍定人自行與相關單位洽商解決。《拍賣抵押物》

※流標打8折,概以執行公告為準
第一拍05/06底標價:4327萬
第二拍未定底標價:3462萬
第三拍未定底標價:2770萬

王牌經理人,十六年以上法拍經驗豐富
眼光最精準,代標多筆億元以上的案件
在地最深耕,資源豐富廣闊人脈執行力
協助自用者,找到理想實用的房屋圓夢
幫助投資人,創造物件最高投資報酬率
最專業團隊,讓您案件事半功倍又圓滿

【在地深耕,眼光精準,人脈廣闊】
■產權清楚、案件評估、排除瑕疵事故
■全程負責、快速交屋、拍後不被騷擾
■代墊利率6.3%、額度8成、手續費0.3%
■房貸利率2.85%、免排隊、立即撥款
■法拍屋代墊款、需要資金、歡迎找我

104法拍網|透明房訊|全國最大
◆規模最大◈歷史最久◆
全國七處分公司,300多位編制人員
成立於1986年,全國16家法院駐點
◆專業最強◈全國唯一◆
全國超過1800場授課專業講習
100坪倉庫,造冊拍賣遺留物
◆正派經營◈開立發票◆
營業員(99)登159091號
經紀人(96)年北市經證字01243號
一零四法拍網(股),統編28306523
◆愛心傳播◈每件捐款5000元◆
至「伊甸社會福利基金會」

能看屋的,網頁會註明。一般法拍屋查封之後無法入內參觀,可依據建物平面圖推斷室內格局是否方正,或參考樓上樓下鄰居房屋。(預約看屋留言,一律不回)
坪數說明
建物登記總坪數土地登記總坪數4.58
主建物坪數30.94停車位坪數14.01
附屬建物坪數4.47公共設施坪數18.77
增建坪數地下室坪數
周邊環境
生活機能鄰近交通
鄰近地標公園綠地
鄰近學區捷運站
房屋聯絡人資訊
聯絡人姓名經理:華國峰 / 特助:李佩玟
(煩請告知聯絡人,您是在House-Info房屋網看到這則廣告,真摯感恩您的幫忙)
手機
0916-000-104
Line加入好友Line加入好友
所屬公司名稱透明房訊 ,104法拍網(股)
公司電話(02)8262-5555 / (03)337-5555公司傳真買賣一下子、服務一輩子
公司地址新北市土城區金城路二段396號11樓 / 桃園市桃園區莊敬路一段346號4樓
網 址http://www.104法拍屋.tw
贊助商廣告
桃園廠房,桃園廠房出租,桃園廠房出售
新北法拍屋,新北市法拍屋,新北法院法拍屋
新北林口大樓法拍-1
新北林口大樓法拍-1
新北林口大樓法拍-2
新北林口大樓法拍-2
新北林口大樓法拍-3
新北林口大樓法拍-3
新北林口大樓法拍-4
新北林口大樓法拍-4
新北林口大樓法拍-5
新北林口大樓法拍-5
新北林口大樓法拍-6
新北林口大樓法拍-6
新北林口大樓法拍-7
新北林口大樓法拍-7
新北林口大樓法拍-8
新北林口大樓法拍-8
新北林口大樓法拍-9
新北林口大樓法拍-9
新北林口大樓法拍-10
新北林口大樓法拍-10
新北林口大樓法拍-11
新北林口大樓法拍-11
新北林口大樓法拍-12
新北林口大樓法拍-12
新北林口大樓法拍-13
新北林口大樓法拍-13
新北林口大樓法拍-14
新北林口大樓法拍-14
新北林口大樓法拍-15
新北林口大樓法拍-15
觀看地圖

法拍新北市林口區大樓-新北市林口區富貴路67號11樓-大樓

物件留言
請注意,如果您詢問的內容與物件不相符合或是廣告,經過審核,系統將會直接刪除您的發問內容
等待圖示
檢舉物件不實
等待圖示
黃金曝光
相似物件
www.houseinfo.com.tw房屋網免責聲明:本系統為租用式開放房屋買賣網站建置平台,僅提供會員查詢-法拍新北市林口區大樓--等房屋資訊參考,並不涉入任何諮詢、交易。 物件(服務)聯絡人公佈的資訊、文字、照片、圖形、產權、廣告內容、或其他資料若有不實或違法情事,或與客戶聯絡交易過程中若衍生民事或刑事等法律問題,皆與本房屋網站無關,所有商標、文章、名稱等版權,皆歸屬原著作者所有! ●電話:07-7963288