法拍新莊區公寓
07-7963288
客服電話
申請房仲網站
首頁
買房屋
買土地
買法拍屋
廠房租售
房屋仲介
社區建案
委託買賣
關鍵字
現在位置:
首頁
›
買法拍屋
›
新北市法拍公寓
›
新莊區法拍公寓
›
法拍新莊區公寓-新北市新莊區瓊林南路305巷3號4樓
最後更新:23小時內
檢舉案件不實
│
列印
│
物件留言
|
觀看地圖
法拍新莊區公寓
法拍新莊區公寓
房屋資料
案名
新莊區瓊林南路|公寓四樓|近樹林秀泰影城、興仁夜市、河濱公園
案號
115職四18金 115/03/18(三)10:30
地址
新北市新莊區
瓊林南路305巷3號4樓
銷售狀態
待標中
售價
售1999萬8000元
售1599萬9000元
房屋類型
法拍公寓
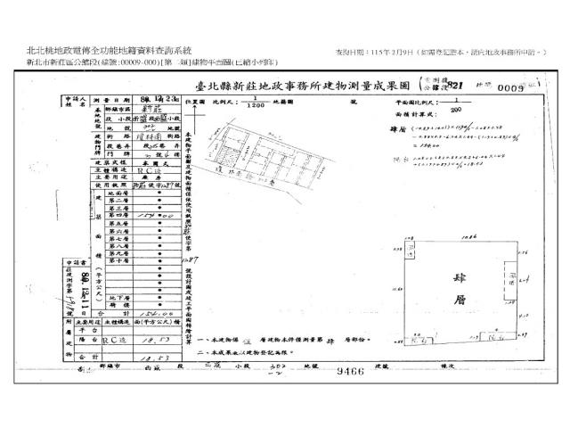
總登記坪數
65.45 坪
格局
0房
屋齡
35年
每坪單價
24.44萬/坪
公設比
車位
沒有車位
座向
無障礙環境
沒有
法拍屋
本物件是法拍屋
拍次 : 第2拍 點交
開標日期 : 2026/03/18(三)10:30
建物所在樓層
4樓/共5樓
管理費
管委會
沒有
中庭
沒有
電梯
沒有
是否為凶宅
300公尺內嫌惡設施
面前道路
面寬
縱深
邊間
不是
房屋銷售來源
不動產經紀人/專業仲介
房屋特色
【法院筆錄內容】
1‧拍賣標的由債務人及其家屬自住,拍定後應予點交。
2‧另鑑定報告勘查並未入室,無法得之勘估標的內部是否有嚴重漏水、地震受創或火災受損等事宜,僅以外觀現況判斷。又查詢公開資訊網站,現未查得本建物有海砂屋、輻射屋、地震受創、非自然死亡之列管足以影響交易之特殊情事,實際情形仍請投標人至現場自行查明注意。
3‧投標人應自行查明債務人有無積欠工程受益費、水電瓦斯費、管理費、公共基金等,應依公寓大廈管理條例第24條規定辦理,並注意拍定後民法第799之1條第4項規定之適用間題。
4‧本件如有停止、撤回、撤銷、延緩執行、足額清償等事由,且該事由確實發生於本案拍定前,縱已宣布拍定,法院亦得撤銷拍定,無息返還已繳交之款項,當事人均不得異議,不同意者,請勿參與投標應買。
5‧刊登於網站或其他公告處所之公告內容如與法院公告欄張貼之公告內容不符時,一律以法院公告欄張貼之拍賣公告內容為準。
6‧拍賣之不動產如於查封後經地政機關實施重測,其面積應以重測結果(地籍圖)為準,拍定後債權人、債務人、拍定人或其他關係人均不得以面積增減請求增減價金或聲請撤銷拍賣。
《新北地方法院案號:114年度司執壽字第105859號,清償債務》
【保證金】
320萬
【拍賣履歴】
一拍2026/02/25流標底標價格1999.8萬
二拍2026/03/18底標價格1599.9萬
三拍底標價格1279.8萬
四拍底標價格1023.8萬
【焦點法拍履歴】
👩🏻⚖️從業二十年以上經驗|競競業業|正派經營
🎯投標準備⇥法拍流程說明|標單填寫|案件現場勘查有無特殊情事|成本評估分析
💰銀行貸款⇥法拍物件估價|投標人財力評估|銀行代墊款協助辦理|最高八成
🏡拍定得標⇥強制執行書狀、履勘陳報書狀往返|債務人搬遷協商|遺留物造冊查估
🎁委託代標⇥免費|委託代標未得標⇥免費
🏢鑫創資產管理有限公司
顏麗杏0911-965339營業員證號:(101)登字第212862號
連真甄0909-031993營業員證號:(101)登字第192002號
更多物件☞焦點法拍
經紀人李彥槿:109北市經證字第02110號
坪數說明
建物登記總坪數
65.45
土地登記總坪數
14.39
主建物坪數
46.59
停車位坪數
附屬建物坪數
5.60
公共設施坪數
13.26
增建坪數
地下室坪數
周邊環境
生活機能
鄰近交通
鄰近地標
近樹林秀泰影城、興仁花園夜市、監理所、河濱公園
公園綠地
鄰近學區
捷運站
房屋聯絡人資訊
聯絡人姓名
小顏
(煩請告知聯絡人,您是在House-Info房屋網看到這則廣告,真摯感恩您的幫忙)
手機
0911-965-339
Line加入好友
所屬公司名稱
鑫創資產管理有限公司
公司電話
公司傳真
公司地址
新北市新莊區中環路二段423號一樓
網 址
http://www.1314home.tw
贊助商廣告
新北新莊法拍公寓-1
新北新莊法拍公寓-2
新北新莊法拍公寓-3
新北新莊法拍公寓-4
新北新莊法拍公寓-5
新北新莊法拍公寓-6
新北新莊法拍公寓-7
新北新莊法拍公寓-8
新北新莊法拍公寓-9
新北新莊法拍公寓-10
新北新莊法拍公寓-11
新北新莊法拍公寓-12
觀看地圖
到Google查看地圖
到Google查看街景
法拍新莊區公寓-新北市新莊區瓊林南路305巷3號4樓-公寓
物件留言
請注意,如果您詢問的內容與物件不相符合或是廣告,經過審核,系統將會直接刪除您的發問內容
檢舉物件不實
黃金曝光
國泰街38號4樓-
公寓
4.54坪
售344萬
自強路90巷33-
公寓
34.61坪
售832萬
文化南路65巷40
公寓
16.55坪
售427萬
四川路二段245巷
公寓
36.57坪
售1081萬
相似物件
民族路167巷12
公寓 / 3房
35.68坪
售1438萬
民族路167巷12
公寓
35.68坪
售1797萬2300元
大同街20號4樓
公寓
48.66坪
售1416萬3000元
信義路58號2樓
公寓_法拍公寓
20.5坪
售1353萬
www.houseinfo.com.tw房屋網
免責聲明:本系統為租用式開放房屋買賣網站建置平台,僅提供會員查詢-
法拍新莊區公寓
-
-等房屋資訊參考,並不涉入任何諮詢、交易。 物件(服務)聯絡人公佈的資訊、文字、照片、圖形、產權、廣告內容、或其他資料若有不實或違法情事,或與客戶聯絡交易過程中若衍生民事或刑事等法律問題,皆與本房屋網站無關,所有商標、文章、名稱等版權,皆歸屬原著作者所有! ●電話:07-7963288
新莊區法拍華廈
│
新莊區法拍電梯大廈
│
新莊區法拍電梯大樓
│
新莊區法拍大樓
│
新莊區法拍大廈
│
新莊區法拍電梯華廈
│
新莊區法拍透天別墅
│
新莊區法拍透天厝
│
新莊區法拍公寓
│
新莊區法拍店面
│
新莊區法拍套房
│
新莊區法拍廠房
│
新莊區法拍辦公室
│
新莊區法拍豪宅
│
新莊區法拍樓中樓
│
新莊區法拍農舍
│
新莊區法拍廠辦
│
新莊區法拍雅房
│
新莊區法拍倉庫
│
新莊區法拍工業廠房
│
新莊區法拍透天
│
新莊區法拍中古屋
│
新莊區法拍別墅
│
新莊區法拍電梯別墅
│
新莊區法拍透天店面
│
新莊區法拍屋
│
新莊區法拍房屋
│
新莊區法拍房子
請注意:此案件已下架
資料處理中,請稍後...