法拍板橋區大樓
07-7963288
客服電話
申請房仲網站
首頁
買房屋
買土地
買法拍屋
廠房租售
房屋仲介
社區建案
委託買賣
關鍵字
現在位置:
首頁
›
買法拍屋
›
新北市法拍大樓
›
板橋區法拍大樓
›
法拍板橋區大樓-新北市板橋區中山路二段531巷17弄9號2樓
最後更新:1天前
檢舉案件不實
│
列印
│
物件留言
|
觀看地圖
法拍板橋區大樓
法拍板橋區大樓
房屋資料
案名
板橋區中山路二段【萬歲新天地】近捷運江子翠站、興隆市場
案號
114日105960 115/1/13(二) 14:30
地址
新北市板橋區
中山路二段531巷17弄9號2樓
社區/大樓
新北-萬歲新天地
銷售狀態
待標中
售價
售2280萬
房屋類型
法拍大樓
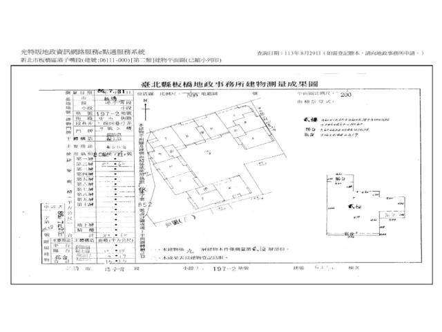
總登記坪數
45.8 坪
格局
0房
屋齡
28年
每坪單價
49.78萬/坪
公設比
車位
座向
無障礙環境
有
法拍屋
本物件是法拍屋
拍次 : 第1拍 部分點交
開標日期 : 2026/1/13(二) 14:30
建物所在樓層
2樓/共9樓
管理費
管委會
有
中庭
有
電梯
有
是否為凶宅
300公尺內嫌惡設施
面前道路
面寬
縱深
邊間
是
房屋銷售來源
不動產經紀人/專業仲介
房屋特色
【法院筆錄內容】
1‧本件標的之6111建號建物於本院查封時,債務人表示房屋係自住,拍定後點交;然標的6068建號建物於地籍謄本註明之主要用途為管理員室,且其所有權為應有部分,拍定後不點交。另於本院查封時債務人表明有停車位,位於地下室之B2.28號,惟停車位未有獨立產權,應由全體區分所有權人協議使用分管方法,應買人應自行向管委會查明區分所有權人分管契約或公寓大廈規約等,拍定後不點交。
2‧倘拍定後須通知優先承買權人行使優先承買權,可能需相當時日(數月至數年不等)。若有優先承買權爭議,於該爭議確定時,始核發權利移轉證書。
3‧經查詢相關機關,本件標的經初步調查無海砂屋、輻射屋、地震受創、火災受損及發生非自然死亡等情形。惟因調查限度難以查明,相關調查結果及使用限制請投標人自行向主管機關查明並評估衡量,綜合考量相關風險再行投標。拍定後,債權人、債務人、拍定人或其他關係人,均不得以本院就上開事由所載使用情形不明或未盡調查能事等理由,請求增減價金或聲請撤銷拍賣。
4‧刊登於新聞紙之公告、本院郵寄之通知、網路公告或以其他方式或管道標示之內容,如與本院公告欄張貼之公告內容不符時,一律以本院公告欄張貼之拍賣公告內容為準。
5‧本件標的物原所有權人或使用人如有積欠工程受益等費用,應由拍定人自行查明後與相關單位洽商解決。
6‧為維護交易秩序,保障當事人合理權益:(1)若有停止、撤回、撤銷、延緩強制執行之事由,而其事由確實發生於本案標的拍定日或拍定日前,縱已拍定,本院亦得撤銷拍定,無息返還已經繳交之款項,應買人、拍定人、債權人、債務人均不得異議,不同意之應買人請勿參與本案投標,請另行透過其他方式或管道購買不動產。(2)因虛偽、未據實、及時陳述及提供資料、隱匿資料、偽造文書、詐欺等故意或過失行為(均包括口頭說明及書面文件),致新北地院及所屬承辦人員,受有損害賠償之請求,債權人、債務人應對新北地院及其所屬承辦人員所受之損害,負擔賠償責任。(3)拍定人持本院核發之權利移轉證書,若有無法辦理拍賣標的所有權移轉登記之情形,得由本院撤銷拍定,無息退還拍定人繳交款項,應買人、拍定人、債權人、債務人均不得異議,不同意之應買人請勿參與投標,請另行透過其他方式或管道購買不動產。
7‧本拍賣公告所載不動產面積,係以查封時之謄本為依據,如地政機關於查封後實施重測,則其面積應以重測結果為準。經拍定後,債權人、債務人、拍定人或其他關係人,均不得以重測後面積與公告不符,聲請增減價金或撤銷拍賣。
《拍賣抵押物》
【保證金】
456萬
【拍賣履歴】
一拍2026/01/13底標價格2280萬
二拍底標價格1824萬
三拍底標價格1459.2萬
四拍底標價格1167.4萬
【焦點法拍履歴】
👩🏻⚖️從業二十年以上經驗|競競業業|正派經營
🎯投標準備⇥法拍流程說明|標單填寫|案件現場勘查有無特殊情事|成本評估分析
💰銀行貸款⇥法拍物件估價|投標人財力評估|銀行代墊款協助辦理|最高八成
🏡拍定得標⇥強制執行書狀、履勘陳報書狀往返|債務人搬遷協商|遺留物造冊查估
🎁委託代標⇥免費|委託代標未得標⇥免費
🏢鑫創資產管理有限公司
顏麗杏0911-965339營業員證號:(101)登字第212862號
連真甄0909-031993營業員證號:(101)登字第192002號
更多物件☞焦點法拍
經紀人李彥槿:109北市經證字第02110號
坪數說明
建物登記總坪數
45.8
土地登記總坪數
6.85
主建物坪數
24.39
停車位坪數
附屬建物坪數
4.03
公共設施坪數
17.38
增建坪數
地下室坪數
周邊環境
生活機能
鄰近交通
鄰近地標
近捷運江子翠站、興隆市場、河濱公園
公園綠地
鄰近學區
捷運站
江子翠
房屋聯絡人資訊
聯絡人姓名
小顏
(煩請告知聯絡人,您是在House-Info房屋網看到這則廣告,真摯感恩您的幫忙)
手機
0911-965-339
Line加入好友
所屬公司名稱
鑫創資產管理有限公司
公司電話
公司傳真
公司地址
新北市新莊區中環路二段423號一樓
網 址
http://www.1314home.tw
贊助商廣告
板橋拍賣大樓-1
板橋拍賣大樓-2
板橋拍賣大樓-3
板橋拍賣大樓-4
板橋拍賣大樓-5
板橋拍賣大樓-6
板橋拍賣大樓-7
板橋拍賣大樓-8
板橋拍賣大樓-9
板橋拍賣大樓-10
板橋拍賣大樓-11
板橋拍賣大樓-12
板橋拍賣大樓-13
觀看地圖
到Google查看地圖
到Google查看街景
法拍板橋區大樓-新北市板橋區中山路二段531巷17弄9號2樓-大樓
物件留言
請注意,如果您詢問的內容與物件不相符合或是廣告,經過審核,系統將會直接刪除您的發問內容
檢舉物件不實
黃金曝光
復興路268號3樓
大樓_法拍大樓
45.82坪
售2480萬
三和路四段380號
大樓 / 3房
30.14坪
售1445萬6000元
金門街65號9樓
大樓_法拍大樓
39.58坪
售1600萬
學府路210號6樓
大樓_法拍大樓
115.45坪
售4282萬
相似物件
學勤路637號2樓
大樓 / 4房
64.02坪
售2400萬
中原路87號12樓
大樓
56.11坪
售2126萬
文化路一段270巷
大樓 / 3房
50.98坪
售2550萬7000元
新市一路三段117
大樓
76.43坪
售2183萬
www.houseinfo.com.tw房屋網
免責聲明:本系統為租用式開放房屋買賣網站建置平台,僅提供會員查詢-
法拍板橋區大樓
-
-等房屋資訊參考,並不涉入任何諮詢、交易。 物件(服務)聯絡人公佈的資訊、文字、照片、圖形、產權、廣告內容、或其他資料若有不實或違法情事,或與客戶聯絡交易過程中若衍生民事或刑事等法律問題,皆與本房屋網站無關,所有商標、文章、名稱等版權,皆歸屬原著作者所有! ●電話:07-7963288
新北市法拍華廈
│
新北市法拍電梯大廈
│
新北市法拍電梯大樓
│
新北市法拍大樓
│
新北市法拍大廈
│
新北市法拍電梯華廈
│
新北市法拍透天別墅
│
新北市法拍透天厝
│
新北市法拍公寓
│
新北市法拍店面
│
新北市法拍套房
│
新北市法拍廠房
│
新北市法拍辦公室
│
新北市法拍豪宅
│
新北市法拍樓中樓
│
新北市法拍農舍
│
新北市法拍廠辦
│
新北市法拍雅房
│
新北市法拍倉庫
│
新北市法拍工業廠房
│
新北市法拍透天
│
新北市法拍中古屋
│
新北市法拍別墅
│
新北市法拍電梯別墅
│
新北市法拍透天店面
│
新北市法拍屋
│
新北市法拍房屋
│
新北市法拍房子
請注意:此案件已下架
資料處理中,請稍後...