法拍湖內區透天

最後更新:2天前
房屋資料
案名近大湖國小大湖夜市大面寬大地坪4樓車墅拍1535萬案號湖內區中山路一段
地址高雄市湖內區中山路
銷售狀態待標中售價
售1535萬
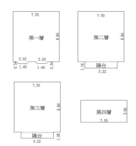
房屋類型法拍透天_別墅_一樓總登記坪數103.44 坪
格局4房, 2廳, 3衛, 4陽台, 1廚房屋齡14年
每坪單價14.84萬/坪公設比
車位室內雙車庫座向
無障礙環境法拍屋 本物件是法拍屋
拍次 : 一拍
開標日期 : 02/03
建物所在樓層共4樓管理費
管委會中庭
電梯 未知 是否為凶宅不是
300公尺內嫌惡設施面前道路8米
面寬7.5米縱深8.8米
邊間房屋銷售來源不動產經紀人/專業仲介
房屋特色
104法拍屋四大保證:

一、過濾案件︰保證產權清楚,過濾瑕疵案件

二、評估標價︰保證標得到又標得便宜

三、包辦點交︰保證和諧快速交屋附點交保固書

四、代墊尾款︰保證提供尾款代墊

◎沒得標•免付費!!竭‧誠‧為‧您‧服‧務

您所擔心的問題就是我們的專業

專業的問題,就交給專業有信用有口碑的團隊

代標顧問:蘇副理0934087640

目前拍次為115/02/03一拍1535萬(有點交)《請來電洽詢進場拍次‧讓您標得到又標得低!》

Google高雄法拍顧問蘇副理0934087640

更多精選好屋

❤️買房網:買屋網mywoo-蘇秀珠豪宅規格親民價



❤️LINE:https://reurl.cc/28k2L9請點選連結可加LINE好友

❤️FB:https://reurl.cc/qZ1MNE特別徵選低總價物件

❤️樂屋網:vip.rakuya.com.tw/0934087640/sell更多精選物件請點連結

❤️便宜房子何處找?https://shorturl.at/qY5qG



※※法拍有時效性法拍資訊以法院公告為準※※

※※法拍屋不能看內部請來電洽詢詳細地址

坪數說明
建物登記總坪數103.44土地登記總坪數48.66
主建物坪數72.86停車位坪數
附屬建物坪數公共設施坪數
增建坪數地下室坪數
周邊環境
生活機能鄰近交通
鄰近地標公園綠地
鄰近學區捷運站
房屋聯絡人資訊
聯絡人姓名蘇副理
(煩請告知聯絡人,您是在House-Info房屋網看到這則廣告,真摯感恩您的幫忙)
手機
0934-087-640
Line加入好友
所屬公司名稱一零四高欣仲介經紀有限公司
公司電話0934087640公司傳真一零四高欣仲介經紀有限公司
公司地址高雄市苓雅區海邊路65號9樓
網 址http://www.南台灣法拍.tw
贊助商廣告
高雄湖內法拍透天-1
高雄湖內法拍透天-1
高雄湖內法拍透天-2
高雄湖內法拍透天-2
高雄湖內法拍透天-3
高雄湖內法拍透天-3
高雄湖內法拍透天-4
高雄湖內法拍透天-4
高雄湖內法拍透天-5
高雄湖內法拍透天-5

法拍湖內區透天-高雄市湖內區中山路-透天

物件留言
請注意,如果您詢問的內容與物件不相符合或是廣告,經過審核,系統將會直接刪除您的發問內容
等待圖示
檢舉物件不實
等待圖示
黃金曝光
相似物件
www.houseinfo.com.tw房屋網免責聲明:本系統為租用式開放房屋買賣網站建置平台,僅提供會員查詢-法拍湖內區透天--等房屋資訊參考,並不涉入任何諮詢、交易。 物件(服務)聯絡人公佈的資訊、文字、照片、圖形、產權、廣告內容、或其他資料若有不實或違法情事,或與客戶聯絡交易過程中若衍生民事或刑事等法律問題,皆與本房屋網站無關,所有商標、文章、名稱等版權,皆歸屬原著作者所有! ●電話:07-7963288