法拍高雄橋頭大樓

*
高雄廠房,高雄工業廠房出租,高雄工業廠房租售
最後更新:2小時內
房屋資料
案名近橋科甲圍國小輕屋齡溫馨3房1平車拍940萬案號橋頭區經武路
地址高雄市橋頭區經武路社區/大樓高雄-鑫市鎮(龍騰建設)
銷售狀態待標中售價
售940萬
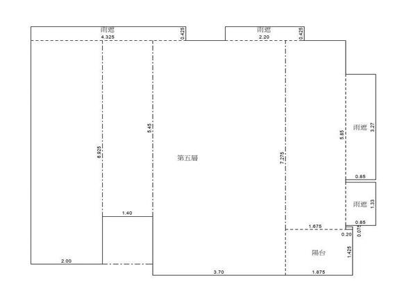
房屋類型法拍大樓總登記坪數39 坪
格局3房, 2廳, 2衛, 2陽台, 1廚房屋齡5年
每坪單價24.1萬/坪公設比47.6%
車位坡道式平面車位座向
無障礙環境法拍屋 本物件是法拍屋
拍次 : 二拍
開標日期 : 3/25
建物所在樓層5樓/共15樓管理費
管委會中庭
電梯是否為凶宅不是
300公尺內嫌惡設施面前道路
面寬7.275米縱深8.975米
邊間房屋銷售來源不動產經紀人/專業仲介
房屋特色
歡迎來電有室內照

104法拍屋四大保證:

一、過濾案件︰保證產權清楚,過濾瑕疵案件

二、評估標價︰保證標得到又標得便宜

三、包辦點交︰保證和諧快速交屋附點交保固書

四、代墊尾款︰保證提供尾款代墊

◎沒得標•免付費!!竭‧誠‧為‧您‧服‧務

您所擔心的問題就是我們的專業

專業的問題,就交給專業有信用有口碑的團隊

代標顧問:蘇秀珠經理0934087640

目前拍次為03/25二拍940萬(有點交)《請來電洽詢進場拍次‧讓您標得到又標得低!》

Google高雄法拍顧問蘇秀珠經理0934087640

更多精選好屋

❤️買房網:買屋網mywoo-蘇秀珠豪宅規格親民價



❤️LINE:https://reurl.cc/28k2L9請點選連結可加LINE好友

❤️FB:https://reurl.cc/qZ1MNE特別徵選低總價物件

❤️樂屋網:vip.rakuya.com.tw/0934087640/sell更多精選物件請點連結

❤️便宜房子何處找?https://shorturl.at/qY5qG



※※法拍有時效性法拍資訊以法院公告為準※※

※※法拍屋不能看內部請來電洽詢詳細地址

坪數說明
建物登記總坪數39.00土地登記總坪數4.69
主建物坪數20.44停車位坪數
附屬建物坪數公共設施坪數18.56
增建坪數地下室坪數
周邊環境
生活機能鄰近交通
鄰近地標公園綠地
鄰近學區捷運站
房屋聯絡人資訊
聯絡人姓名蘇副理
(煩請告知聯絡人,您是在House-Info房屋網看到這則廣告,真摯感恩您的幫忙)
手機
0934-087-640
Line加入好友
所屬公司名稱一零四高欣仲介經紀有限公司
公司電話0934087640公司傳真一零四高欣仲介經紀有限公司
公司地址高雄市苓雅區海邊路65號9樓
網 址http://www.南台灣法拍.tw
贊助商廣告
高雄廠房,591高雄廠房,高雄市廠房
高雄工業廠房,高雄市廠房買賣,高雄工業用地
高雄橋頭大樓法拍-1
高雄橋頭大樓法拍-1
高雄橋頭大樓法拍-2
高雄橋頭大樓法拍-2
高雄橋頭大樓法拍-3
高雄橋頭大樓法拍-3
高雄橋頭大樓法拍-4
高雄橋頭大樓法拍-4
高雄橋頭大樓法拍-5
高雄橋頭大樓法拍-5
高雄橋頭大樓法拍-6
高雄橋頭大樓法拍-6
高雄橋頭大樓法拍-7
高雄橋頭大樓法拍-7

法拍高雄橋頭大樓-高雄市橋頭區經武路-大樓

物件留言
請注意,如果您詢問的內容與物件不相符合或是廣告,經過審核,系統將會直接刪除您的發問內容
等待圖示
檢舉物件不實
等待圖示
相似物件
www.houseinfo.com.tw房屋網免責聲明:本系統為租用式開放房屋買賣網站建置平台,僅提供會員查詢-法拍高雄橋頭大樓--等房屋資訊參考,並不涉入任何諮詢、交易。 物件(服務)聯絡人公佈的資訊、文字、照片、圖形、產權、廣告內容、或其他資料若有不實或違法情事,或與客戶聯絡交易過程中若衍生民事或刑事等法律問題,皆與本房屋網站無關,所有商標、文章、名稱等版權,皆歸屬原著作者所有! ●電話:07-7963288