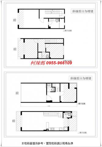
| 房屋特色 | 1.整棟重新整理+增建,實際使用
2.空間大幅提升,格局方正,動線佳
3.一樓孝親房+有天井+二樓延伸露台
4.屋內保有自然光,乾爽不潮溼
5.仁和商圈,生活機能完整,採買便利
6.崇善商圈近學區,外食方便,診所林立,生活便利滿分
WWW.大台南房屋土地聯賣網.tw
「以上權狀資訊如有記載錯誤,一律依騰本登記資料為準。」
期待眼光獨到的您.前來鑑賞如欲看屋
請來電:林先生0936-816-212.柯辣媽0955-966-109
證號(100)登字第181516.證號(93)登字第037460號
LINE搜尋ID0936816212.ID0955966109
誠昱不動產仲介有限公司
*上架資料僅於委託銷售契約期間內有效.若因契約期滿.成交等情形而無法銷售等事由者.請務必與承辦人員再次確認*
|
|---|